Architecturale Plattegronden
Een Uitgebreide Gids tot Bouwtekeningen Plattegronden:
Introductie tot Architecturale Plattegronden
Architecturale plattegronden, in het Nederlands bekend als 'Bouwtekeningen Plattegronden', zijn de onbezongen helden van bouwprojecten. Deze ingewikkelde tekeningen dienen als de ruggengraat van elk gebouw, waarbij abstracte ideeën worden omgezet in concrete realiteit. Ze bieden een gedetailleerd vogelperspectief van een voorgestelde structuur, waarbij de indeling, afmetingen en ingewikkelde relaties tussen verschillende ruimtes worden benadrukt. Dit artikel neemt je mee op een reis door de wereld van architecturale plattegronden, waarbij we hun essentie, evolutie en belang in de moderne architectuur verkennen.De Essentie van Bouwtekeningen Plattegronden
Bouwtekeningen Plattegronden staan op het kruispunt van kunst en wetenschap, waarbij creativiteit wordt gecombineerd met technische precisie. Ze zijn meer dan alleen tekeningen; ze zijn de fundamentele blauwdrukken die essentieel zijn voor elk bouwproject. De essentie van deze plannen ligt in hun vermogen om een uitgebreid en gedetailleerd beeld van een gebouw te bieden, waarbij wordt getoond hoe elke ruimte met elkaar verbonden is en functioneert in harmonie.Historische Evolutie van Plattegrondontwerp
De reis van plattegrondontwerp is een verhaal van menselijke creativiteit en technologische vooruitgang. Van de eenvoudige, functionele indelingen van oude beschavingen tot de geavanceerde 3D-modellen van vandaag, plattegronden zijn voortdurend geëvolueerd en weerspiegelen veranderingen in technologie en architecturale stijlen. Laten we verkennen hoe deze ontwerpen zijn getransformeerd van de basisschetsen van het verleden tot de ingewikkelde digitale plannen van het moderne tijdperk.Basisprincipes van Architecturale Plattegronden
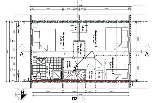
Het begrijpen van de basisprincipes van architecturale plattegronden is cruciaal voor iedereen die geïnteresseerd is in bouw of ontwerp. Dit gedeelte gaat dieper in op het belang van schalen en afmetingen, wat zorgt voor de nauwkeurigheid en haalbaarheid van een bouwontwerp. Ook worden de belangrijkste elementen besproken die deel uitmaken van een plattegrond, zoals kamerindeling, plaatsing van deuren en ramen en details over meubilair, elektra en loodgieterij.Belangrijke Elementen in Plattegronden
Een goed ontworpen plattegrond bestaat uit verschillende belangrijke elementen die de functionaliteit en esthetiek van een gebouw verbeteren. Van de strategische indeling van kamers tot de doordachte plaatsing van deuren en ramen, elk element speelt een vitale rol. Dit gedeelte bespreekt hoe deze elementen samenkomen om een samenhangend en efficiënt ontwerp te creëren.Typen Architecturale Plattegronden
Plattegronden zijn geen eenheidsworst; ze variëren sterk afhankelijk van hun beoogde gebruik. Dit deel van het artikel zal de residentiële en commerciële plattegronden vergelijken en contrasteren, waarbij hun unieke kenmerken en vereisten worden benadrukt. Ook worden gespecialiseerde plattegronden geïntroduceerd die zijn ontworpen voor industriële en openbare ruimtes, elk afgestemd op specifieke behoeften en uitdagingen.Het Ontwerpproces
Een plattegrond maken is een nauwgezet proces dat begint met het begrijpen van de visie van de klant en eindigt met een gedetailleerde blauwdruk klaar voor de bouw. Dit gedeelte leidt je door elke stap van dit proces, van het initiële concept tot het uiteindelijke ontwerp, met nadruk op het belang van de inbreng en voorkeuren van de klant.Technische Aspecten van Plattegronden
In dit moderne tijdperk is het ontwerp van plattegronden sterk afhankelijk van digitale hulpmiddelen en software. Dit deel van het artikel introduceert je in de software en hulpmiddelen die onmisbaar zijn geworden in het hedendaagse plattegrondontwerp, zoals CAD- en BIM-software. Ook wordt de noodzaak besproken om te voldoen aan bouwcodes en regelgeving om veiligheid en naleving te garanderen.Innovatieve Trends in Plattegrondontwerp
Als we naar de toekomst kijken, vormen duurzaamheid en slimme technologie de manier waarop we plattegronden ontwerpen. Dit gedeelte zal verkennen hoe milieuvriendelijke principes en automatisering worden geïntegreerd in moderne architectonische ontwerpen, waardoor de weg wordt geëffend voor meer duurzame en intelligente gebouwen.Uitdagingen bij het Creëren van Effectieve Plattegronden
Het creëren van een effectieve plattegrond is een complexe taak die vereist dat esthetiek wordt afgewogen tegen functionaliteit, terwijl wordt aangepast aan verschillende beperkingen. Dit deel van het artikel zal de uitdagingen bespreken waarmee architecten worden geconfronteerd, van het omgaan met ruimtelijke beperkingen tot het voldoen aan milieueisen, en hoe ze deze obstakels overwinnen om succesvolle ontwerpen te creëren.Architecturale Plattegronden in de Praktijk
Om de impact en effectiviteit van architecturale plattegronden echt te begrijpen, zullen we casestudy's van gerenommeerde architecturale projecten onderzoeken. Dit gedeelte zal laten zien hoe innovatieve plattegrondplanning heeft bijgedragen aan het succes van beroemde gebouwen en zal de rol van effectieve plattegrondplanning in het verbeteren van de bouwefficiëntie bespreken.Conclusie
Terwijl we afsluiten, zullen we de belangrijkste punten die in dit artikel zijn besproken opnieuw bezoeken en vooruitkijken naar de toekomst van architecturale plattegronden. De evolutie en innovatie op dit gebied blijven onze gebouwde omgeving vormgeven, wat bewijst dat de kunst en wetenschap van Bouwtekeningen Plattegronden relevanter zijn dan ooit.FAQs 1. Wat zijn de belangrijkste onderdelen van een architecturale plattegrond? 2. Hoe hebben technologische vooruitgangen invloed gehad op plattegrondontwerp? 3. Wat is het verschil tussen residentiële en commerciële plattegronden? 4. Hoe integreren architecten duurzaamheid in plattegronden? 5. Wat zijn de uitdagingen bij het ontwerpen van effectieve plattegronden? 6. Hoe dragen plattegronden bij aan de bouwefficiëntie?
Popular posts
-
-
Dakkapel Nodig ?
March 10, 2023 -
Aanbouw Nodig ?
March 18, 2023 -
Dakterras Nodig ?
March 15, 2023
